VDL House
Location: Villa de Leyva, Colombia
Typology: Single Family Home
Features: Two Bedrooms
Two opposing volumes that intersect make up this discordant morphology of its surroundings. One horizontal, permeable malleable, alive and therefore perishable in its materiality. The other, solid vertical, immutable and closed. This duality is lived in different temporalities.
Linked to the use of space, the vertical volume has a transitory and short experience with an intimate character, while the horizontal volume that connects with the surrounding vegetation is the space to inhabit and connect. The house opens in the day, allowing the vegetation to pass from side to side of the space and closes at night to maintain the heat and the sensation of withdrawal proper to rest. These circumstances make duality a recurring characteristic of the project and its core identity.
Entry View
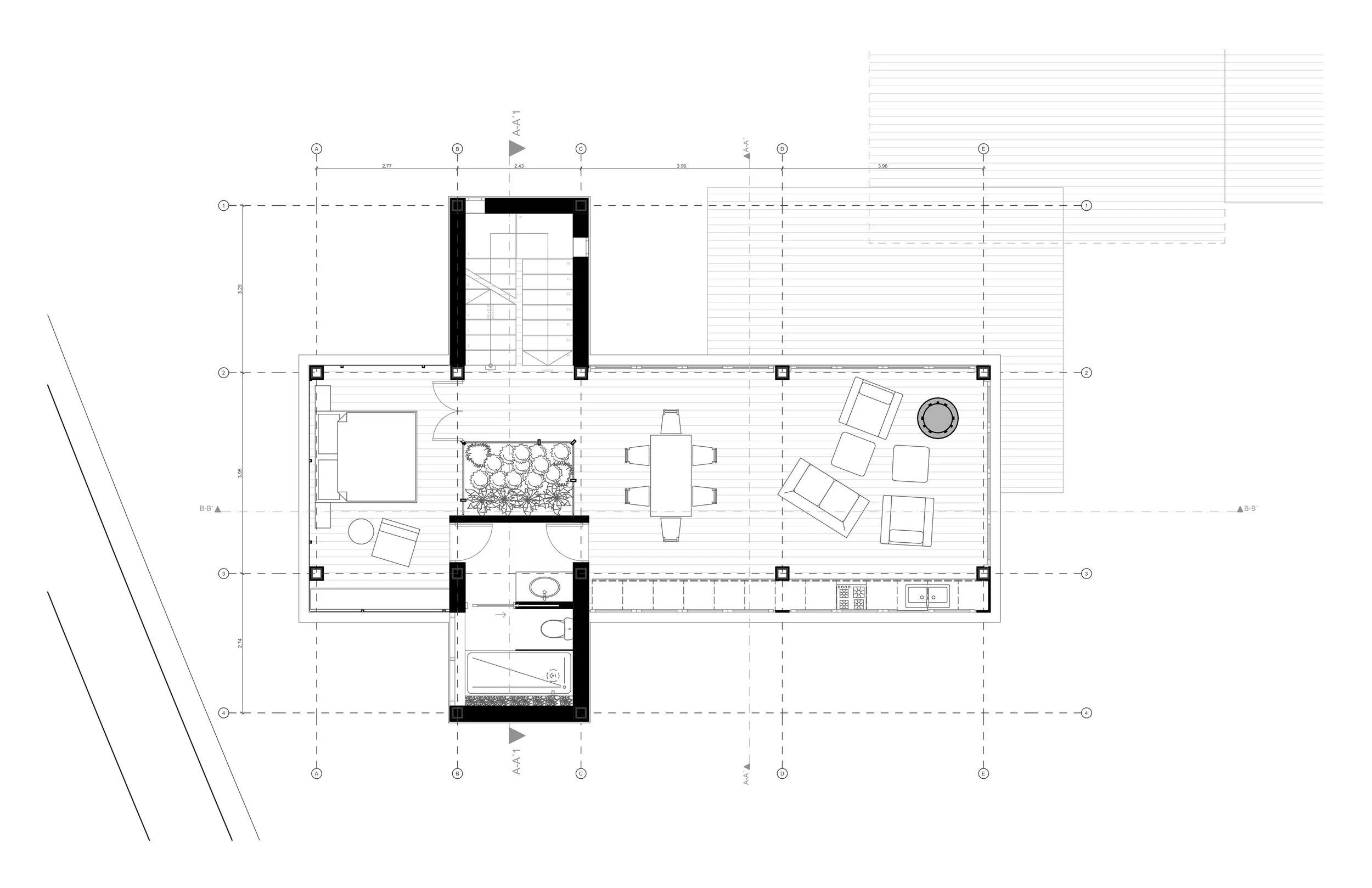
Ground Floor Plan
Second Floor Plan
Section A A
Section B B